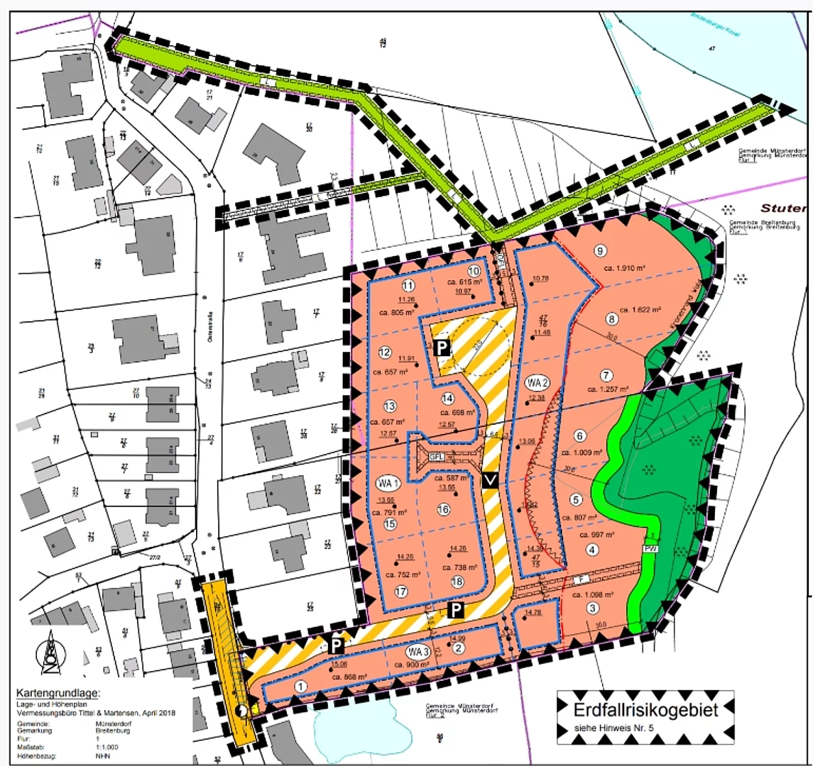
Neubaugebiet Osterstraße Münsterdorf: Beginn des Losverfahrens

Bis zum 24. März 2022 besteht die Möglichkeit, das Interesse für den Kauf einer Parzelle im Neubaugebiet Osterstraße zu bekunden.
Weitere Informationen zum zeitllichen Ablauf und zum Losverfahren finden Sie in dem unten stehenden Brief an die Interessentenliste.
Die Einteilung der Parzellen, Vorschriften und Hinweise zum Baugebiet finden Sie hier.